TH、HL型環鏈離心斗式提升機

HL型環鏈離心斗式提升機產品概述
HL型環鏈離心斗式提升機適用于垂直輸送磨琢性較大的粉狀、粒狀、及小塊狀物料,如糧食、煤、水泥、碎礦石等,輸送高度最高40m。其特點為,結構簡單,運行平穩,掏取式裝料,混合式或重力卸料,輪緣采用組合鏈輪,更換方便,鏈輪輪緣經特殊處理壽命長,下部如采用重力自動張緊裝置,能保持恒定的張力,避免打滑或脫鏈,同時在料斗遇阻時,有一定的容讓性能夠有效地保護運動部件,物料溫度不超過250℃。
Product overview
The HL type centrifugal bucket elevator chain is suitable for vertical conveying grinding cut larger powder, granulated and small lump materials, such as grain, coal, cement, crushed ore, conveying height top 40 m.For its characteristics, simple structure, smooth operation, tao take type charging, mixed or gravity discharge, rim combined sprocket, easy to change, sprocket rim specially dealing with long service life, lower if use gravity automatic tensioning device, can keep constant tension and avoid skid or take off the chain, in the hopper blocked at the same time, has the certain let performance enough to effectively protect the moving parts, material temperature does not exceed 250 ℃.
斗式提升機現場圖片
Working site



HL型環鏈離心斗式提升機主要特點
1.運行平穩、輸送效率高。
2.料斗形式多,應優先選用。
3.適應性強、安裝維修方便、壽命長。
4.整機體積小、轉速高、確保快速均勻輸送。
Features
1. Smooth operation, high transmission efficiency.
2. The hopper form, more should be preferable.
3. Strong adaptability, easy installation and maintenance, long service life.
4. The machine is small in size, high speed, ensure rapid delivery uniformity.
HL型環鏈離心斗式提升機工作原理
我公司生產的HL型環鏈離心斗式提升機由運動部分(料斗與牽引鏈條)、帶有傳動鏈輪的上部區段、帶有拉緊輪的下部區段、中間機殼、驅動裝置、逆止制動裝置等組成(見下圖)。本提升機的料斗為間斷式布置,利用“掏取法”進行裝載,“離心投料法”卸料。本提升機的牽引機構是兩根環形鏈條。
Working principles
Our company produces the HL type centrifugal bucket elevator chain by moving parts (hopper and traction chain), with the upper section of the sprocket, with the bottom of the tensioning wheel section, intermediate casing, driving device, non-return braking device, etc (see below).The hoist hopper for layout, intermittent loading by determining the "tao", the "centrifugal feeding method" discharge.This elevator traction institutions are two circular chain.
HL型環鏈離心斗式提升機制法和裝法
1、按料斗形狀分為兩種:S制法--帶有深圓底形料斗;Q制法--帶有淺圓底形料斗。
2、按上部區段卸料口的形式分為兩種:X1 制法--帶有傾斜法蘭的卸料口;X2 制法--帶有水平法蘭的卸料口。
3、按下部區段進料口的形式分為兩種:J1 制法--進料口的斜面與水平面成45度角;J2 制法--進料口的斜面與水平面成60度角。
4、按中間機殼側面檢視門的位置分為四種:K1 制法--中間機殼側面帶有下端左檢視門;K2 制法--中間機殼側面帶有下端右檢視門;K3 制法--中間機殼側面帶有上端左檢視門;K4 制法--中間機殼側面帶有上端右檢視門。
5、按中間機殼端面檢視門的位置分為兩種:Z1 制法--中間機殼端面帶有下端檢視門;Z2 制法--中間機殼端面帶有上端檢視門。
6、按傳動裝置對提升機的相對位置分為兩種:左裝--傳動裝置在左側;右裝--傳動裝置在右側。
Manufacture and Assemble Method
1, according to the shape of hopper is divided into two kinds: S method -- with a deep round bottom shaped hopper;The method of Q - with shallow round bottom shaped hopper.
2, according to the upper section of the form of a discharge outlet can be divided into two kinds: X1 fashion - with the discharging mouth of the inclined flange;Method the X2 - with horizontal discharge outlet flange.
3, according to the form of lower section inlet can be divided into two kinds: J1 program - inlet of inclined plane and horizontal plane Angle of 45 degrees;J2 method - inlet of inclined plane and horizontal plane into 60 degree Angle.
4, according to the intermediate casing side view of the position of the door is divided into four kinds: K1 process - intermediate casing with the bottom left side view door;K2 method -- intermediate casing with the bottom right side view door;K3 method -- intermediate casing with the upper left side view door;K4 method - intermediate casing with the top right side to check door.
5, according to the intermediate casing end view of the position of the door is divided into two kinds: - Z1 know-how for the intermediate casing end with a bottom view door;Method Z2 - intermediate casing end face with top view door.
6, according to the transmission of the relative position of hoist is divided into two kinds: left - transmission device on the left side;Right - transmission device on the right side.
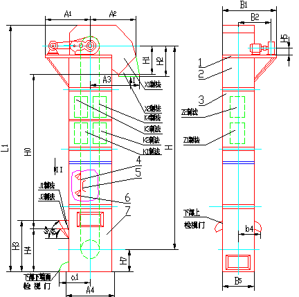
HL型環鏈離心斗式提升機外形示意圖
Outline Sketch map



HL型環鏈離心斗式提升機技術參數表
Parameters| 項 目 | 提升機型號 | ||||||||
| HL300 | HL400 | ||||||||
| S制法 | Q制法 | S制法 | Q制法 | ||||||
| 輸送能力,平方米/小時 | 28 | 16 | 47.2 | 30 | |||||
| 料斗容量,升 | 5.2 | 4.4 | 10.5 | 10 | |||||
| 斗距,毫米 | 500 | 500 | 600 | 600 | |||||
| 運行部分(料斗牽引鏈條) 公斤/米 | 24.8 | 24 | 29.2 | 28.3 | |||||
| 牽引鏈條 | 型式 | 鍛造環形鏈 | |||||||
| 圓鋼直徑(毫米) | 18 | 18 | |||||||
| 節距(毫米) | 50 | 50 | |||||||
| 破斷強度(公斤) | 12800 | 12800 | |||||||
| 料斗運動速度(米/秒) | 1.25 | 1.25 | |||||||
| 傳動鏈條軸轉數(轉/分) | 37.5 | 37.5 | |||||||
| 輸送物料的散狀比重 | H,米 | N,千瓦 | H,米 | N,千瓦 | H,米 | N,千瓦 | H,米 | N,千瓦 | |
| 0.8 | 59 | 6.35 | 64 | 4.36 | 30 | 7 | 33 | 6.3 | |
| 1.0 | 52 | 7.55 | 60 | 5.12 | 27 | 7.6 | 30 | 7 | |
| 1.25 | 41 | 8.7 | 49 | 5.3 | 23 | 8 | 26 | 7.6 | |
| 1.6 | 31 | 9.7 | 39 | 5.3 | 18.5 | 8.4 | 22 | 8.2 | |
| 2.0 | 24 | 9.7 | 29 | 5.35 | 15 | 8.6 | 18 | 8.4 | |
| 傳動裝置制法 | C1 | C2 | C3 | C4 | C1 | C2 | |||
| 圓柱齒輪減速機 | 傳動裝置右裝 | JZQ400—IV—3U | JZQ400—IV—3U | ||||||
| 傳動裝置左裝 | JZQ400—IV—4Y | JZQ400—IV—4Y | |||||||
| 電動機型號 | Y132M2—6 | Y160M—6 | Y160L—6 | Y160M—6 | Y160L—6 | ||||
| 傳動裝置功率(千瓦) | 5.5 | 7.5 | 7.5 | 7.5 | 7.5 | 7.5 | |||
| 棘輪制動裝置(齒輪X模數) | 6X18 | 6X18 | 8X15 | 8X15 | 6X18 | 8X15 | |||
| 傳動裝置重量(公斤) | 628 | 702 | 870 | 885 | 902 | 917 | |||
| 物料的最大塊度(毫米) | 25 | 35 | 45 | 55 | |||||
斗式提升機種類分類
斗式提升機作為一種常用的提升設備,在得到廣泛應用的同時,根據不同行業的要求也有著非常清楚的分類,按照傳動結構可以分為:
(1).TD系列斗式提升機:
TD系列斗式提升機是一種國家標準的斗式提升機,該系列斗式提升機和D系列斗式提升機都是采用的膠帶傳動來提升物料,兩者沒有本質的區別,D系列斗式提升機產品型號較老且型號規格少。TD系列斗式提升機是在D系列斗式提升機的基礎上經過產品改良而來,其規格有TD100(不常用)、TD160、TD250、TD315、TD400、TD500、TD630、TD800、TD1000等型號,其中TD160、TD250、TD315等型號為普遍采用型號.
(2).TH系列斗式提升機:
TH系列斗式提升機是一種常用的提升設備,該系列斗式提升機采用鍛造環鏈作為傳動部分,具有很強的機械強度,主要用于提升粉體和小顆粒及小塊狀物料,區別于TD系列斗式提升機,其提升量更大、運轉效率更高。其常用于較大比重物料的提升。
(3).NE系列斗式提升機:
NE系列斗式提升機是一種新型的斗式提升機,其采用板鏈傳動,區別于老型號TB系列板鏈斗式提升機,其命名方式采用提升量命名而非斗寬。如NE150指的是提升量為150噸一小時而不是斗寬150。NE系列斗式提升機有著很高的提升效率,根據提升速度不同還分有NSE型號及高速板鏈斗式提升機。
(4).TB系列斗式提升機:
TB系列斗式提升機是一種較老型號的斗式提升機,其傳動部分采用板鏈傳動,現已經被NE系列斗式提升機產品替代。
(5).TG系列斗式提升機:
TG系列斗式提升機是一種加強型膠帶斗式提升機,區別于TD系列斗式提升機,TG系列斗式提升機采用鋼絲膠帶作為傳動帶,具有更強的傳動能力。該系列斗式提升機多被應用于糧食輸送上,又被稱呼為糧食專用斗式提升機。
(6).其它型號斗式提升機:
常見的斗式提升機型號還有HL系列斗式提升機、GTD系列斗式提升機、GTH系列斗式提升機等,其均為以上型號的不同叫法和演變形式。
Kinds of classification
Bucket elevator, as a commonly used lifting equipment, is widely applied in the at the same time, on the basis of the requirements of different industries have a very clear classification, according to the transmission structure can be divided into:
(1). TD series bucket elevator:
TD series bucket elevator is a kind of national standard of bucket elevator, the series bucket elevator and D series bucket elevator are the tape drive to improve material, no essential difference between the two, D series bucket elevator product model relatively less old and specifications.TD series bucket elevator is on the basis of the D series bucket elevator after product improvement, and its specifications have TD100 (not used), TD160, TD250, TD315, TD400, TD500, TD630, TD800, TD1000 models, including TD160, TD250, TD315 model for the widely used model.
(2). TH series bucket elevator:
TH series bucket elevator is a commonly used lifting equipment, the series bucket elevator forged ring chain as the driving part, has a strong mechanical strength, it is mainly used for lifting powder and small particles and small block material, different from TD series bucket elevator, the lifting capacity is bigger, more efficient operation.The materials commonly used in larger proportion of ascension.
(3). NE series bucket elevator:
NE series bucket elevator is a new type of bucket elevator, it USES the plate chain, different from the old models TB series plate chain bucket elevator, named after its aming users lifting capacity rather than fight wide.Such as NE150 refers to the lifting capacity of 150 tons a sometimes not fight 150 wide.NE series bucket elevator has a high efficiency, according to the speed of different points are also NSE model and high-speed plate chain bucket elevator.
(4). The TB series bucket elevator:
TB series bucket elevator is a kind of older types of bucket elevator and its transmission part adopts plate chain, now replaced by NE series bucket elevator products.
(5). TG series bucket elevator:
TG series bucket elevator is a kind of reinforced belt bucket elevator, the difference in the TD series bucket elevator, TG series bucket elevator adopts steel wire adhesive tape as a transmission belt, have stronger ability of transmission.This series bucket elevator is more applied in food delivery, and called for food special bucket elevator.
(6). Other types of bucket elevator:
Common bucket elevator model number and the HL series bucket elevator, GTD series bucket elevator, GTH series bucket elevator, etc., and its form are the above model and different way of evolution.
我公司可根據用戶需要設計制造特殊型號規格的斗式提升機。
我公司對所有技術資料、尺寸保留修改的權利,如實物與文中圖案不符,應以實物為準。
Our company can design and manufacture according to user needs special specifications of bucket elevator.
My company for all technical data, reserve the right to modify the size, such as material object does not accord with the design, the material shall prevail.












